nieruchomości
Wypełnij formularz i kliknij SZUKAJ poniżej

Numer oferty
 
 
Lokalizacja
Ulica
Cena
Powierzchnia
Liczba pokoi
oferty specjalne

Notes » Zgłoś ofertę » Kalkulator opłat » Partnerzy » Kontakt »

Szczegóły Oferty

mieszkanie ( sprzedaż )

466/3949/OMS

Numer:
466/3949/OMS
Miasto:
KRAKÓW, BIEŃCZYCE
Ulica:
os. Józefa Strusia
Cena:
535 000 PLN kalkulator
Cena za mkw:
9 727,27 PLN mkw
Powierzchnia:
55.00 m2
Liczba pokoi:
3
Piętro:
3
Liczba pięter:
4
Stan:
do kapitalnego remontu
Rok budowy:
1966
Piwnica:
TAK
Komórka:
TAK

Opis

Mieszkanie położone na os. Strusia, dzielnica Bieńczyce.
Lokal usytuowany na III piętrze w IV piętrowym bloku z 1966 roku.
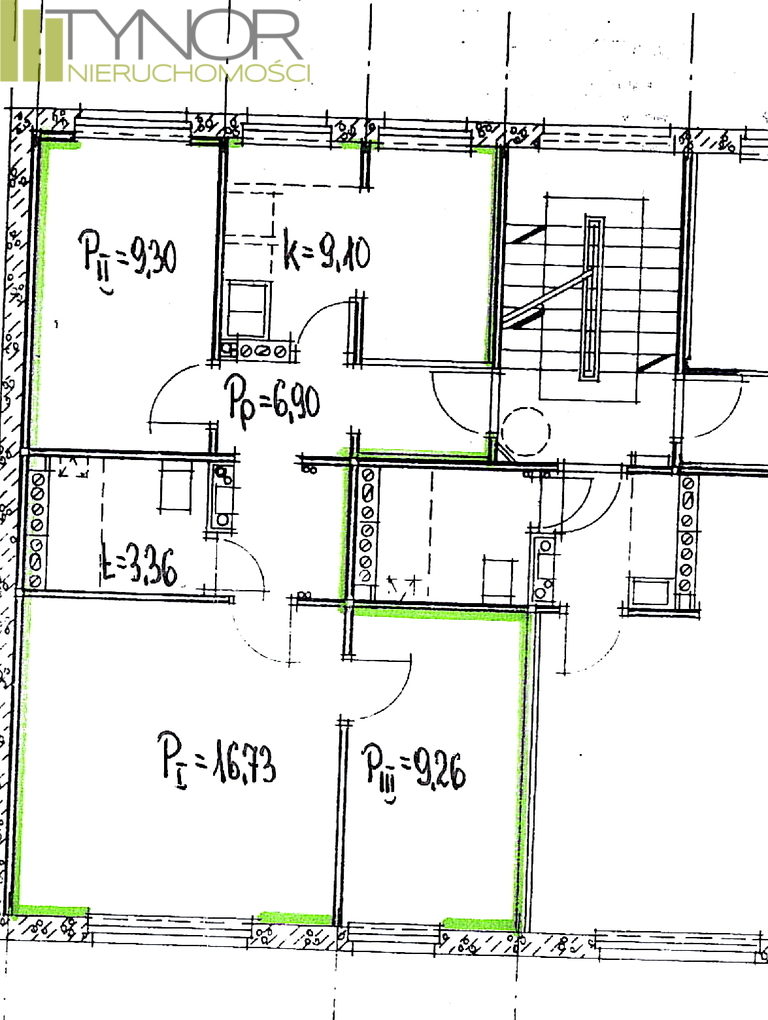
Powierzchnia mieszkania wynosi 54,65 m2.
Składa się z kuchni o pow. 9,1 m2, którą można zamienić na pokój oraz trzech pokoi o pow. 9 + 9 + 17 m2 (w tym duży przechodni), korytarza i łazienki.
Istnieje możliwość zrobienia aneksu kuchennego w dużym pokoju i przerobienie kuchni na pokój wówczas powstanie mieszkanie 4 pokojowe.
Nieruchomość wymaga gruntownego remontu, okna są stare drewniane.
Ogrzewanie i ciepła woda są z sieci miejskiej, czynsz administracyjny wynosi 890 zł (przy 3 osobach).
Mieszkanie jest dwustronne, okna o ekspozycji na południe oraz północ.
Budynek został docieplony w 2005 roku, dzięki czemu mieszkanie jest wyjątkowo ciepłe.
Do mieszkania przynależy piwnica.
Dookoła bloku ogólnodostępne miejsca postojowe.
W sąsiedztwie doskonała infrastruktura na sąsiednim osiedlu jest szkoła, przedszkole, liczne sklepy. Ponad to duża ilość zieleni, w pobliżu Lidl, Biedronka, Kaufland, Lewiatan. Nieopodal CH Serenada, Multikino Park Wodny.
Przystanek autobusowy w odległości 3 minut pieszo, przystanek tramwajowy w odległości 7 minut pieszo.

Nieruchomość dostępna od zaraz.




Świadectwo charakterystyki energetycznej - zapotrzebowanie na energię

EU - użytkową (kWh/m2*rok) 117.42 EK - końcową (kWh/m2*rok) 162.95 EP - nieodnawialną energię pierwotną (kWh/m2*rok) 114.12 EC02 - Wielkość emisji CO2 (t C02/m2*rok) 0.06 UOZE - Udział odnawialnych źródeł energii w zapotrzebowaniu na energię końcową [%] 0.00
Maria Tynor
Nr licencji pośrednika odpowiedzialnego zawodowo: 15647
tel: +48512055117
email: biuro@tynor-nieruchomosci.pl

 
TYNOR Nieruchomości
NIP 6751249542
REGON 120695704 Kraków
tel.: +48 512055117
email: biuro@tynor-nieruchomosci.pl
Wyślij ofertę na e-mail

Jeśli chcesz dostać tą ofertę w e-mailu,
podaj swój adres.
 
 

Prześlij wiadomość do naszej firmy
Imię i Nazwisko 
Telefon 
E-mail 
Treść zapytania 

Wyrażam zgodę na przetwarzanie moich danych osobowych przez firmę TYNOR Nieruchomości dla celów związanych z działalnością pośrednictwa w obrocie nieruchomościami, jednocześnie potwierdzam, iż zostałem poinformowany o tym, iż będę posiadać dostęp do treści swoich danych do ich edycji lub usunięcia.